Fisher Street, Paignton

Price £475,000

Detached House

Overview

7 Bedroom Detached House for sale in Fisher Street, Paignton

An exciting detached period, character filled property that offers bundles of space and potential. The property comprises of an entrance hallway, a large, living room, a modern kitchen/diner, a spacious dining room, a downstairs WC and utility room, seven bedrooms, one of which is ensuite, a family bathroom, the property also boasts, a two bedroom, self-contained annex. There is also wrap around south facing gardens, a double garage and off road parking. The property is located within a stones, throw off Goodrington and Paignton Beach, Paignton town, a variety of shops and supermarkets, travel links and schools. This exciting property is being offered with no onward chain. 

Key Features:

  • CLOSE TO AN ARRAY OF AMENITIES
  • DOUBLE GARAGE
  • BUNDLES OF POTENTIAL
  • LEVEL SOUTH FACING GARDENS
  • CHARACTER PROPERTY

PROPERTY DESCRIPTION An exciting detached period, character filled property that offers bundles of space and potential. The property comprises of an entrance hallway, a large, living room, a modern kitchen/diner, a spacious dining room, a downstairs WC and utility room, seven bedrooms, one of which is ensuite, a family bathroom, the property also boasts, a two bedroom, self-contained annex. There is also wrap around south facing gardens, a double garage and off road parking. The property is located within a stones, throw off Goodrington and Paignton Beach, Paignton town, a variety of shops and supermarkets, travel links and schools. This exciting property is being offered with no onward chain. 

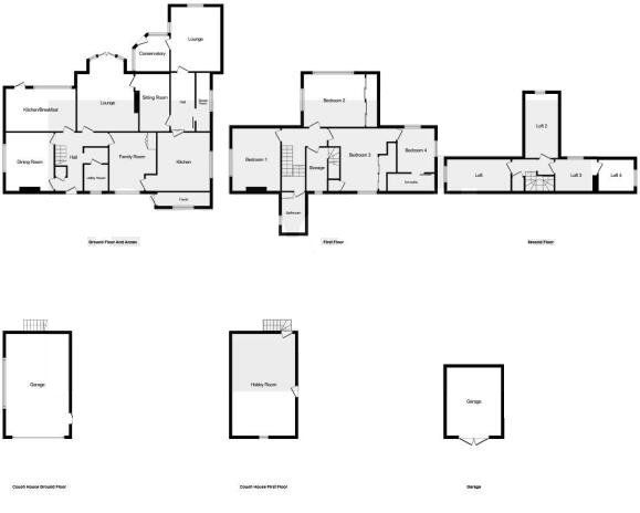
ENTRANCE A wooden double glazed front door opening into a large and welcoming hallway with wonderfully high ceilings. Dado rails and picture rails, stairs rising to the first floor and original doors leading to adjoining rooms. Gas central heating radiator.

KITCHEN/DINER - 5.05m x 3.28m (16'7" x 10'9") A newly fitted and modern kitchen/diner with a range of base, overhead and drawer units with roll edged work surfaces over. A 1.5 bowl stainless steel sink and drainer unit, an electric single oven and a four ring gas hob with extractor hood above. Space for an American style fridge/freezer. Complimentary tile backsplash. Space for an 8 seater dining table. A large uPVC double glazed window overlooking the rear gardens and a uPVC double glazed door leading outside.

LOUNGE  - 5.08m x 4.39m (16'8" x 14'5") A great sized family living room with space for an array of furniture, TV point and picture rails. A uPVC double glazed bay window with uPVC double glazed French doors leading out to the gardens. Gas central heating radiator.

DINING ROOM  - 4.27m x 3.58m (14'0" x 11'9") A grand and big dining room again with wonderfully high ceilings, original architraving and built in display cabinets. Cupboard housing the meters and fuse board. Space for a 10-12 seater dining table. uPVC double glazed window and a gas central heating radiator.

DOWNSTAIRS WC/UTILITY - 2.01m x 1.73m (6'7" x 5'8") A low level flush WC, a pedestal wash hand basin, space and plumbing for a washing machine and tumble dryer with work surfaces above. Tiled flooring and a uPVC double glazed obscure window.

FIRST FLOOR Split level landing.

BATHROOM A modern family bathroom comprising low level flush WC, a pedestal wash hand basin and a sizeable panelled bath unit. Complimentary tiling and panelling. A built in storage cupboard, uPVC double glazed window and a gas central heating radiator.
 
Remainder of stairs rise to the first floor.

BEDROOM ONE - 4.42m x 3.96m (14'6" x 13'0") A phenomenally sized master bedroom with a vast amount of space for furniture. Mirror fronted built in wardrobes, double aspect uPVC double glazed windows overlooking the beautiful rear gardens and a gas central heating radiator.

BEDROOM TWO - 4.42m x 3.81m (14'6" x 12'6") An incredibly large second bedroom again with an abundance of space. Double aspect uPVC double glazed window and a gas central heating radiator. Vanity wash hand basin.

BEDROOM THREE - 4.6m x 3.23m (15'1" x 10'7") A further generous double bedroom, built in mirror fronted wardrobes, uPVC double glazed window and a gas central heating radiator. Door opening into:-

BEDROOM/STUDY - 3.23m x 2.9m (10'7" x 9'6")N A large single bedroom or alternatively could be used as an office. Double aspect uPVC double glazed windows and a gas central heating radiator. Door leading into:-

ENSUITE A three piece suite comprising of a low level flush WC, a pedestal wash hand basin and a bath unit. Part tiled walls and extractor fan.

Stairs rising to the second floor.

BEDROOM FIVE - 4.67m x 2.31m (15'4" x 7'7") A double bedroom over looking the rear aspect of the property. Double aspect windows.

BEDROOM SIX - 4.62m x 2.18m (15'2" x 7'2") Another generous double bedroom with ample space. Double aspect windows.

BEDROOM SEVEN - 6.53m x 2.18m (21'5" x 7'2") An irregular shaped room that could be used as a study/den/games room etc. Three windows and a cupboard housing the solar panel controls.

THE ANNEXE

ENTRANCE PORCHWAY A uPVC double glazed front door and uPVC double glazed window to the side. A cupboard housing the new combination boiler. Secondary door leading into:-

KITCHEN  - 4.29m x 2.64m (14'1" x 8'8") A range of overhead, base and drawer units with marble effect surfaces above. A 2 bowl stainless steel sink unit. Tile backsplash, space and plumbing for an electric oven, washing machine and fridge/freezer. Thermostats heating control. uPVC double glazed window.

LOUNGE/DINER - 5.56m x 3.78m (18'3" x 12'5") An incredibly spacious lounge/diner with space for an array of pieces. Double aspect double glazing and a uPVC double glazed door leading into the conservatory. Gas central heating radiator.

CONSERVATORY  - 2.64m x 2.26m (8'8" x 7'5") Triple aspect double glazing overlooking the beautiful south facing gardens.

BEDROOM ONE - 4.6m x 3.35m (15'1" x 11'0") A massive master bedroom with built in storage and a feature original mantle that stands over 5ft tall. uPVC double glazed window and a gas central heating radiator.

BEDROOM TWO - 3.51m x 3.1m (11'6" x 10'2") A smaller double bedroom. uPVC double glazed door leading into the conservatorty and a gas central heating radiator.

SHOWER ROOM A low level flush WC, a pedestal wash hand basin and a walk in shower. Tiled walls, a chrome heated towel rail and a uPVC double glazed obscure window.

OUTSIDE

DOUBLE GARAGE - 4.8m x 3.81m (15'9" x 12'6") Wooden double doors open up into the double garage.

REAR GARDEN Beautiful, level and enclosed south facing rear gardens with an incredibly large patio area perfect for outdoor dining and entertaining. The rest of the garden is predominately laid to lawn with a vast amount of mature shrubs, plants and trees. There is also a large fish pond and gardens wrapping around the side of the property.

FRONT Double gates open onto a driveway for up to four vehicles leading up to the double garage.

AGENTS NOTES These details are meant as a guide only. Any mention of planning permission, loft rooms, extensions etc, does not imply they have all the necessary consents, building control etc. Photographs, measurements, floorplans are also for guidance only and are not necessarily to scale or indicative of size or items included in the sale. Commentary regarding length of lease, maintenance charges etc is based on information supplied to us and may have changed. We recommend you make your own enquiries via your legal representative over any matters that concern you prior to agreeing to purchase.

Read more

Important Information

  • This is a Freehold property.
  • This Council Tax band for this property is: E

Media

epc

Castle Park Drive, Paignton

4 Bedroom Detached House

Castle Park Drive, Paignton

Luscombe Road, Paignton

5 Bedroom Detached House

Luscombe Road, Paignton

Five Lanes Road, Marldon, Paignton

4 Bedroom Detached House

Five Lanes Road, Marldon, Paignton

Dolphin Crescent, Paignton

4 Bedroom Detached House

Dolphin Crescent, Paignton

Dolphin Crescent, Windmill, Paignton

5 Bedroom Detached House

Dolphin Crescent, Windmill, Paignton

Lower Fowden, Broadsands, Paignton

3 Bedroom Bungalow

Lower Fowden, Broadsands, Paignton


Update Cookies Preferences