SSTC

Keysfield Road, Paignton

Price £55,000

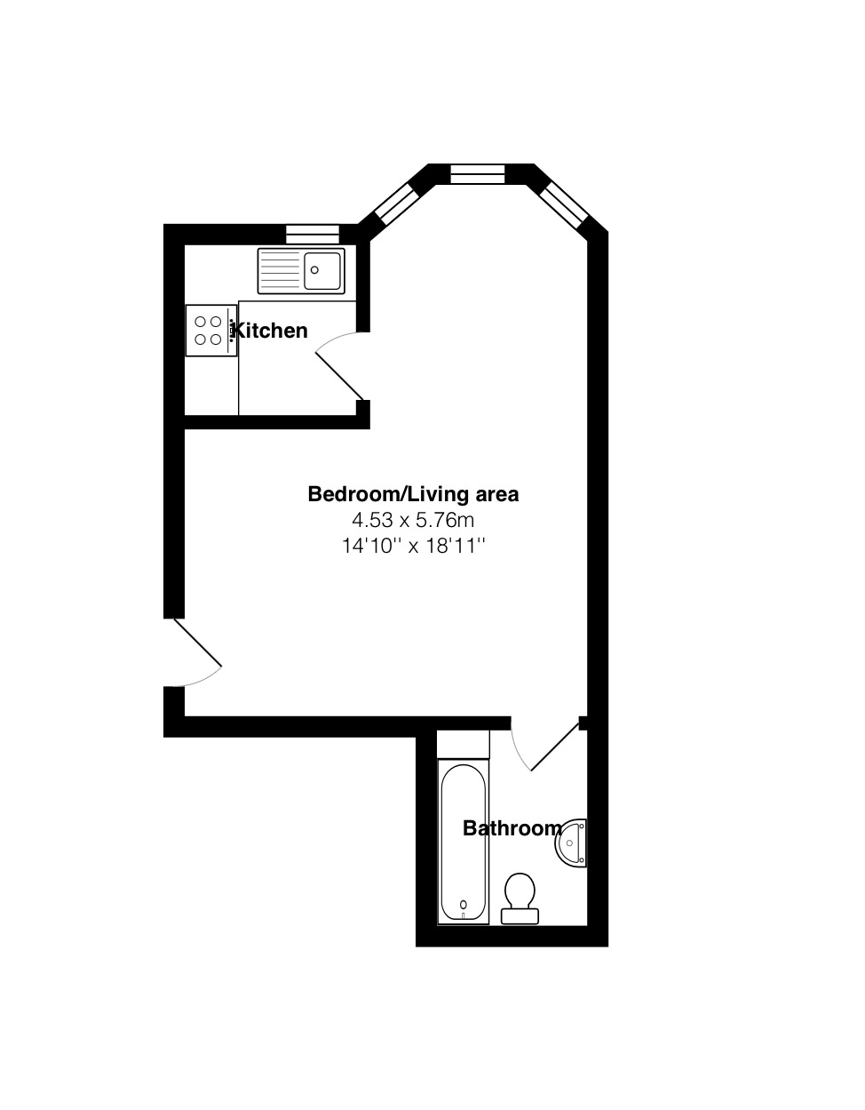
Studio Apartment

Overview

1 Bedroom Studio Apartment for sale in Keysfield Road, Paignton

*******SOLD STC*******

Key Features:

  • *******SOLD STC*******

*SOLD STC*


Verified Material Information
Council Tax band: A
Tenure: Leasehold
Lease length: 80 years remaining (99 years from 2006)
Service charge: £2150.8 pa
Lease restrictions: No holiday lets
Property type: Flat
Property construction: Mansard roof
Energy Performance rating: E
Electricity supply: Mains electricity
Solar Panels: No
Other electricity sources: No
Water supply: Mains water supply
Sewerage: Mains
Heating: None is installed.
Heating features: Double glazing
Broadband: FTTP (Fibre to the Premises)
Mobile coverage: O2 - Good, Vodafone - Great, Three - Great, EE - Great
Parking: Allocated and Off Street
Building safety issues: Yes
Building safety - defects or hazards: None.
Building safety - work done: None
Building safety - work required be done: None
Restrictions - Listed Building: No
Restrictions - Conservation Area: No
Restrictions - Tree Preservation Orders: Yes
Public right of way: No
Long-term area flood risk: No
Historical flooding: No
Flood defences: No
Coastal erosion risk: No
Planning permission issues: No
Accessibility and adaptations: None
Coal mining area: No
Non-coal mining area: No
All information is provided without warranty. Contains HM Land Registry data © Crown copyright and database right 2021. This data is licensed under the Open Government Licence v3.0.
The information contained is intended to help you decide whether the property is suitable for you. You should verify any answers which are important to you with your property lawyer or surveyor or ask for quotes from the appropriate trade experts: builder, plumber, electrician, damp, and timber expert.


AGENTS NOTES These details are meant as a guide only. Any mention of planning permission, loft rooms, extensions etc, does not imply they have all the necessary consents, building control etc. Photographs, measurements, floorplans are also for guidance only and are not necessarily to scale or indicative of size or items included in the sale. Commentary regarding length of lease, maintenance charges etc is based on information supplied to us and may have changed. We recommend you make your own enquiries via your legal representative over any matters that concern you prior to agreeing to purchase.

Read more

Important Information

  • This is a Leasehold property.
  • This Council Tax band for this property is: A

epc

Belle Vue Road, Paignton

1 Bedroom Flat

Belle Vue Road, Paignton

Belle Vue Road, Paignton

1 Bedroom Retirement Property

Belle Vue Road, Paignton

Belle Vue Road, Paignton

1 Bedroom Retirement Property

Belle Vue Road, Paignton

Belle Vue Road, Paignton

1 Bedroom Flat

Belle Vue Road, Paignton


Update Cookies Preferences