SSTC

Roundham Road, Paignton

Guide Price £230,000

Ground Floor Flat

Overview

2 Bedroom Ground Floor Flat for sale in Roundham Road, Paignton

Guide Price £230,000 - £250,000

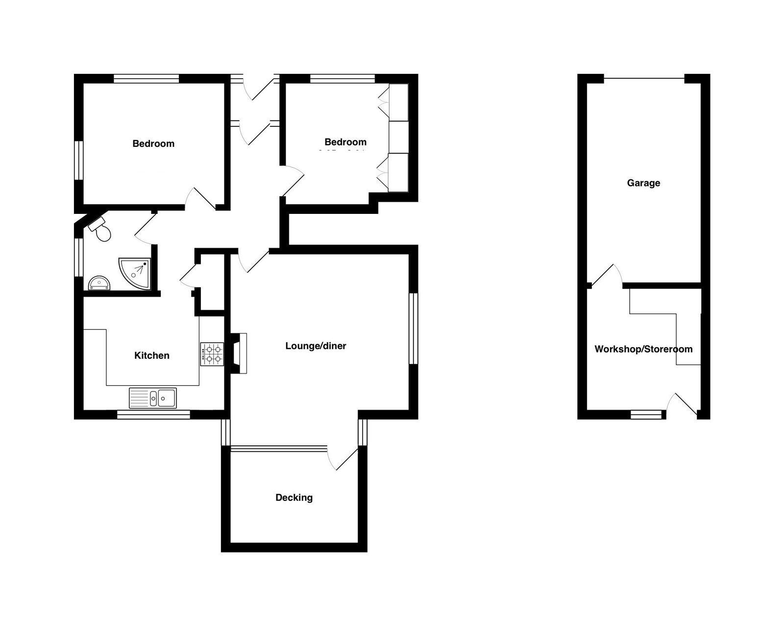
A substantially sized two bedroom ground floor flat located in the desirable location of Roundham, Paignton. The property comprises of a welcoming entrance hallway, a large living room overlooking the picturesque rear gardens and out to Thatchers Rock Torquay, a sizeable fitted kitchen, two double bedrooms, a shower room, well manicured rear gardens, garage and parking. The home is ideally situated within easy reach of Paignton harbour, Paignton town, beaches, cafes and restaurants, bus links, Roundham Green and more. The property is being offered with no onward chain! 

Key Features:

  • SUNNY REAR GARDENS
  • GARAGE AND PARKING
  • SOUGHT AFTER ROUNDHAM LOCATION
  • SEA VIEWS
  • NO CHAIN!

Guide Price £230,000 - £250,000

PROPERTY DESCRIPTION A substantially sized two bedroom ground floor flat located in the desirable location of Roundham, Paignton. The property comprises of a welcoming entrance hallway, a large living room overlooking the picturesque rear gardens and out to Thatchers Rock Torquay, a sizeable fitted kitchen, two double bedrooms, a shower room, well manicured rear gardens, garage and parking. The home is ideally situated within easy reach of Paignton harbour, Paignton town, beaches, cafes and restaurants, bus links, Roundham Green and more. The property is being offered with no onward chain! 

ENTRANCE HALLWAY A uPVC double glazed front door opening into a wide and welcoming entrance hallway with doors leading to the adjoining rooms, telephone point, overhead lighting, smoke alarm, a fitted storage cupboard and a gas central heated radiator.

LIVING ROOM - 5.24m x 4.97m (17'2" x 16'3") A spectacularly large living room with superb sea views across to Thatchers Rock, Torquay. Space for an abundance of furniture, a feature electric fireplace with marble surround, double aspect uPVC double glazed windows, a uPVC double glazed door leading out to the rear gardens and two gas central heated radiators.

KITCHEN - 3.44m x 3.06m (11'3" x 10'0") A range of overhead, base and drawer units with roll edged work surfaces above. A 1 1/2 bowl stainless steel sink and drainer unit, an electric double oven with grill integrated and a four ring gas hob with extractor hood above. Complimentary tile backlash, space for a tall standing fridge freezer, uPVC double glazed window and a gas central heater radiator.

BEDROOM ONE - 3.73m x 3.33m (12'2" x 10'11") A brilliantly spacious master bedroom to the front aspect of the property. Built in wardrobes, drawers and dressing table, uPVC double glazed window and a gas central heated radiator.

BEDROOM TWO -3.72m x 3.22m (12'2" x 10'6") A further generously sized double bedroom with ample room. uPVC double glazed window and a gas central heated radiator.

BATHROOM A three piece suite comprising of a low level flush WC, a pedestal wash hand basin and a corner shower unit. Tiled walls and a uPVC obscure double glazed window.

OUTSIDE  A wonderfully sized private rear garden that boasts a great sized sun deck off of the living room perfect taking in the great sea views, steps then lead

GARAGE - 5.25m x 2.74m (17'2" x 8'11") A metal up and over door with overhead lighting and electrical points. Door leading into the utility.

UTILITY ROOM - 2.88m x 2.73m (9'5" x 8'11") Space and plumbing for a washing machine and dryer. Door leading out to the gardens and a wall mounted combination boiler.

AGENTS NOTES These details are meant as a guide only. Any mention of planning permission, loft rooms, extensions etc, does not imply they have all the necessary consents, building control etc. Photographs, measurements, floorplans are also for guidance only and are not necessarily to scale or indicative of size or items included in the sale. Commentary regarding length of lease, maintenance charges etc is based on information supplied to us and may have changed. We recommend you make your own enquiries via your legal representative over any matters that concern you prior to agreeing to purchase.

Read more

Important Information

  • This is a Freehold property.
  • This Council Tax band for this property is: C

epc

Marldon Grove, Marldon, Paignton

2 Bedroom Detached House

Marldon Grove, Marldon, Paignton

Grange Road, Goodrington, Paignton

2 Bedroom Cottage

Grange Road, Goodrington, Paignton

Hartley Road, Paignton

3 Bedroom End of Terrace House

Hartley Road, Paignton

Cliff Park Road, Goodrington, Paignton

2 Bedroom Flat

Cliff Park Road, Goodrington, Paignton

Haytor Avenue, Roselands, Paignton

2 Bedroom Semi-Detached House

Haytor Avenue, Roselands, Paignton

Barton Avenue, Paignton

2 Bedroom Semi-Detached Bungalow

Barton Avenue, Paignton


Update Cookies Preferences