Roselands Drive, Paignton, Torbay

Offers Over £350,000

Detached House

Overview

5 Bedroom Detached House for sale in Roselands Drive, Paignton, Torbay

A five bedroom detached house located in the sought after residential location of Roselands, Paignton. The property offers bundles of space both internally and externally. The property comprises of a large living room, a kitchen/breakfast room, dining room, a downstairs WC, five bedrooms, a family bathroom, front and rear gardens, off road parking and a garage. Within a stones throw  of the home, you can access a variety of shops and supermarkets, primary, secondary schools and colleges and nearby walks. The property sits on a bus route and can easily access nearby towns. 

Key Features:

  • DETACHED HOUSE
  • FIVE BEDROOMS
  • GARAGE
  • PARKING
  • REAR GARDENS
  • SOUGHT AFTER LOCATION

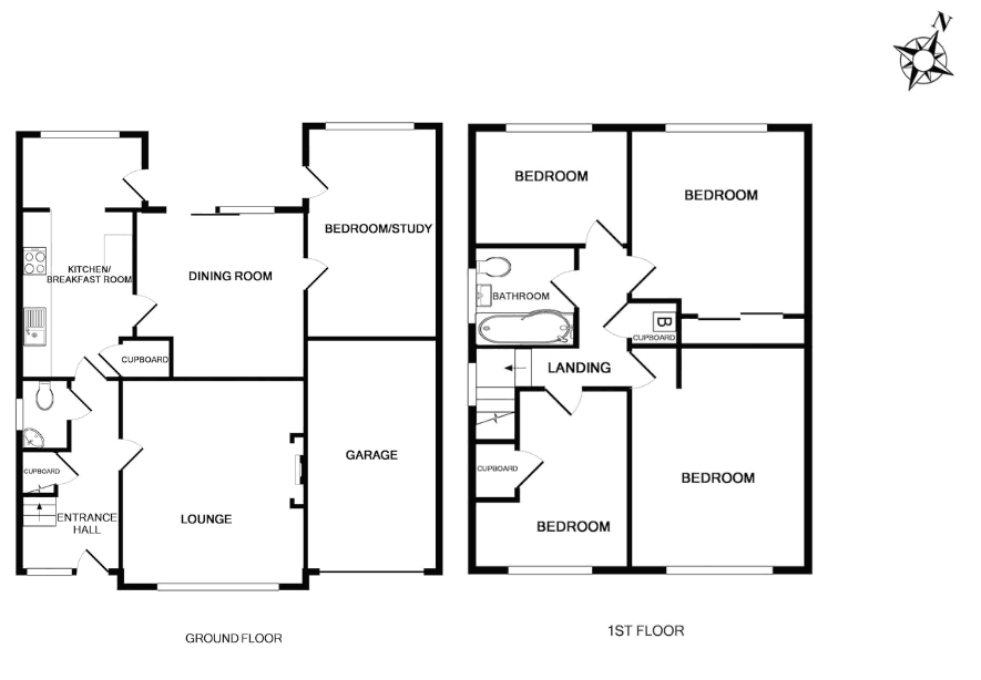
PROPERTY DESCRIPTION A five bedroom detached house located in the sought after residential location of Roselands, Paignton. The property offers bundles of space both internally and externally. The property comprises of a large living room, a kitchen/breakfast room, dining room, a downstairs WC, five bedrooms, a family bathroom, front and rear gardens, off road parking and a garage. Within a stones throw  of the home, you can access a variety of shops and supermarkets, primary, secondary schools and colleges and nearby walks. The property sits on a bus route and can easily access nearby towns. 


ENTRANCE HALL UPVC double glazed front door and UPVC double glazed window to the side to allow ample light to beam through. Stairs rising to first floor, doors leading to adjoining rooms, understairs storage cupboard, thermostat heating control, internet points, gas central heating radiator. 


LOUNGE - 4.64m x 3.94m (15'2" x 12'11") A spectacularly spacious living room to the front aspect of the property. TV and phone points, coving, a feature electric fireplace, a large picture UPVC double glazed window and gas central heating radiator. 


KITCHEN/BREAKFAST ROOM - 5.74m x 2.42m (18'9" x 7'11") A bright and airy kitchen/breakfast room with a variety of wall mounted, base and drawer units. Wood effect roll edge worktops. An electric oven with a 4 ring gas hob and extractor hood over, an integrated dishwasher. Space and plumbing for a washing machine and fridge/freezer. Complimentary tile splashback surround. A 1 1/2 bowl porcelain sink and drainer unit, space for a 4 seater dining table. A large UPVC double glazed window overlooking the rear gardens, a UPVC double glazed French door leading out to the garden and gas central heating radiator. 


DINING ROOM - 3.94m x 3.65m (12'11" x 11'11") A generous sized dining room with space for an 8 seater dining table and variety of other furniture. UPVC double glazed sliding patio doors leading out to the rear garden. Coving and dado rails, gas central heating radiator. 


BEDROOM FIVE/STUDY - 4.66m x 2.87m (15'3" x 9'4") A large room on the ground floor that could easily be used as a bedroom, study, play room etc. A large picture window overlooking the rear gardens, a UPVC double glazed French door giving access to the garden. Gas central heating radiator. 


CLOAKROOM Low level flush WC, wall mounted wash hand basin. Complimentary half tiled walls. A wall mounted medicine cabinet and a UPVC double glazed window. 


FIRST FLOOR


BEDROOM ONE - 4.37m x 3.25m (14'4" x 10'7") An impressively sized master bedroom with ample space for multiple pieces of furniture. Built in mirror fronted wardrobes, UPVC double glazed window and gas central heating radiator. 


BEDROOM TWO - 4.18m x 3.24m (13'8" x 10'7") Another generous double bedroom overlooking the rear garden and woodland. Built in wardrobes, UPVC double glazed window, gas central heating radiator. 


BEDROOM THREE - 3.29m x 2.83m (10'9" x 9'3") An L shaped smaller double bedroom to the front aspect of the property. A built in over the stairs storage cupboard. UPVC double glazed window, gas central heating radiator. 


BEDROOM FOUR - 2.85m x 2.38m (9'4" x 7'9") A spacious single bedroom again overlooking the rear gardens and woodland. A UPVC double glazed window and gas central heating radiator. 


BATHROOM A three piece suite comprising of a low level flush WC, a pedestal wash hand basin and a panelled bath tub with shower attachments over and protective glass screen. Complimentary tiled wall surround. Extractor fan, chrome heated towel rail and a UPVC double glazed frosted window. 


STORAGE CUPBOARD This is where the brand new (less than three months old) Worcester boiler can be located. 


OUTSIDE Off road parking for 2 vehicles. 


REAR GARDEN The rear garden has carefully been divided into two tiers to make the most of each space. The first area has a sizeable patio area perfect for outdoor dining and two turfed areas. Steps then lead down to a large turfed area where the shed and greenhouse can be located. 


GARAGE 5.29m x 2.86m (17'4" x 9'4") Up and over door, overhead lighting and electrical points.


AGENTS NOTES These details are meant as a guide only. Any mention of planning permission, loft rooms, extensions etc, does not imply they have all the necessary consents, building control etc. Photographs, measurements, floorplans are also for guidance only and are not necessarily to scale or indicative of size or items included in the sale. Commentary regarding length of lease, maintenance charges etc is based on information supplied to us and may have changed. We recommend you make your own enquiries via your legal representative over any matters that concern you prior to agreeing to purchase.

Read more

Important Information

  • This is a Freehold property.
  • This Council Tax band for this property is: D

epc

Haytor Avenue, Paignton

4 Bedroom Detached House

Haytor Avenue, Paignton

Logan Road, Paignton

4 Bedroom Detached House

Logan Road, Paignton

Penwill Way, Paignton

3 Bedroom Detached House

Penwill Way, Paignton

Lanhydrock Close, Paignton

4 Bedroom Detached House

Lanhydrock Close, Paignton

Flood Street, Stoke Gabriel, Totnes

3 Bedroom Semi-Detached Bungalow

Flood Street, Stoke Gabriel, Totnes

Bidwell Walk, Paignton

3 Bedroom Detached House

Bidwell Walk, Paignton


Update Cookies Preferences